Single Family House and Store
Thasos, Greece

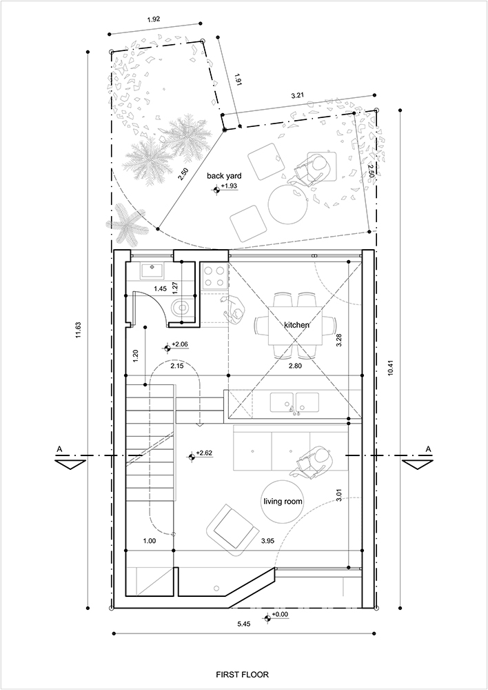
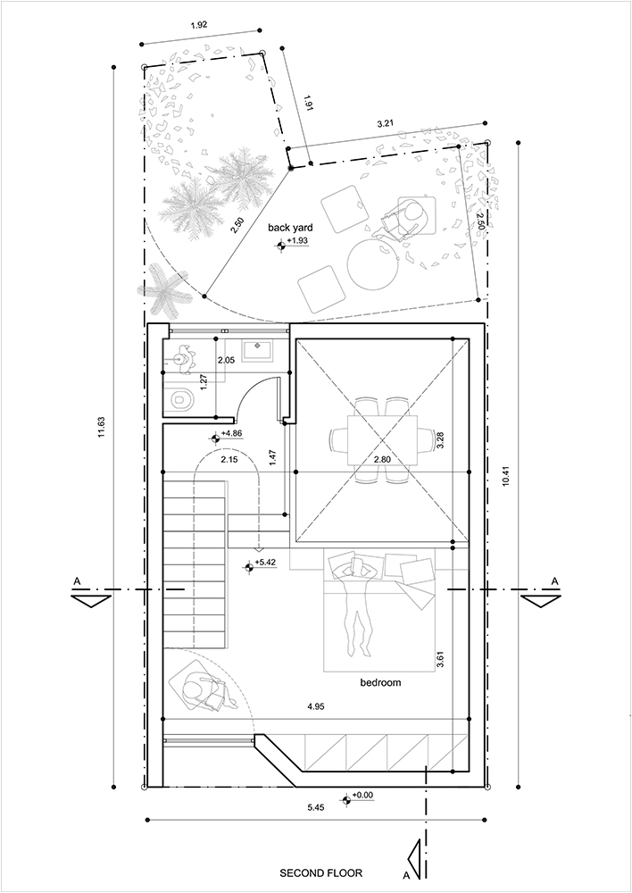
The program includes house and store, while the buildable area is 60 square metres. The major concern was to befool restrictions and create large areas and unexpected comfort. The building combines a small store on the ground floor and a two-storey-one-bedroom apartment on the first and second floors. The two entrances are kept apart by an inclined wall. Given the very limited buildable area, the front facade is multifunctional:

1. Ιts depth hosts closets, libraries and a fireplace.

2. Ιts inclined parts direct the inhabitant’s gaze towards either the sea or the waterfront plaza of the village.

3. Τhe playful placement of its windows responds to the geometric play as it is inscribed on the facades of the neighboring buildings.

The interior of the house lacks enclosures for the purpose of maximizing and extending the perceptive boundaries of the unavoidably small living areas. Kitchen, living room and bedroom are distinct, yet they are kinesthetically and visually connected, providing the most possible depth at all standing points and maximum possibilities for natural ventilation.

  • Client: Private
  • Program: Housing and Retail
  • Area: 60 sq m
  • Status: In Progress
  • Architect: Eleni Papanastasiou
  • Year: 2016